山駒のリノベとは?
リノベーションといった言葉を聞いたとき、皆さんはどういったイメージを持つでしょうか?
非常に漠然とした言葉でイメージを持ちにくいという方も多いのではないでしょうか?
山駒のリノベーションは一つのテーマに添って、物件を再生させていくのを目標にしています。
「温故知新」
古いものを劣っていると断じて何でもかんでも新しいものに取り替えるだけではなく、
その建物が歩んできた歴史を刻みながら最新の技術と融合させることが、
本当の再生であると私たちは考えます。
ただ単に「新築のような」リノベーションではなく、
その物件が持つ歴史そのものを価値に上乗せできる様な・・
そう言うデザインを目指してお客様と一緒に考えていくのが山駒のリノベーションです。
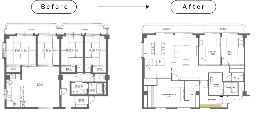
西宮市中古マンションB リノーベーション施工事例
下図の左の旧間取りは昭和後期のマンション建築に良く見られる部屋数を多くした間取りです。
核家族化が進み、1世帯あたりの人数が減少している現在においては部屋数よりも部屋の質が重視されています。
今回のリノベーションでは古いお部屋を一旦スケルトンにして、間取りを組みなおすことで、全体的にお部屋を大きく、
収納を充実させて部屋毎の目的がよりはっきりするようにしました。

西宮市中古マンションB 写真でご紹介
家の顔である玄関部分を明るくリフォーム。
物件が本来持っている採光を利用しつつ照明でカバー。
あえて大きな収納を採用せずに開放感を重視しました。
前は狭く区切られて、広く使えていなかったリビングを大胆に改装しました。
キッチンの位置もややバルコニー側に移動させて、太陽の光を一杯に感じることが出来るリビングにしました。
更に天井を取壊し、天井高を30cmほどアップさせて空間全体に広さを持たせました。
玄関がお家の顔なら、リビングドアはお家ののど元です。
従来のドアより一回り大きい8尺タイプ(約240cm)の建具を採用。
大きい建具を使うことで空間全体がデラックスな感じになり、部屋全体の高級感を高める効果があります。
元々はキッチンのあった部屋をマスターベッドルームにリフォームしました。
入り口を2つリビング側と玄関廊下側に作り、玄関廊下側にはウォークスルークロゼットを作りました。
部屋の奥側にもクローゼットを作り非常に大きな収納力を持たせました。
2つの部屋を引き戸で仕切っている多目的ルームです。
子供部屋や趣味の部屋等、好きに使うことが出来るお部屋です。
出来るだけシンプルな作りにして、自由に使っていただけるようにリフォームしました。
いかにも昔の洗面台を撤去して、ちょっと変わったかわいい洗面台に入れ替えました。
洗面所の壁紙もさし色を入れて落ちついた雰囲気の中に遊び心を加えて作りました。
広々、ウォークインクローゼット。




